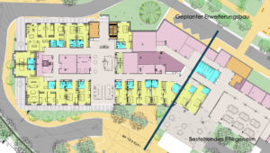
Wie wird die Erweiterung im Detail aussehen?
Hier sehen Sie einen Plan des gesamten erweiterten Gebäudes:
Seitenansicht der gesamten Pflegestation

Weitere Pläne
GRUNDRISSEGrundriss der gesamten erweiterten Pflegestation (Ebene 3 und 4)
Plan für die Mitarbeiterebene und Lagerräume (Ebene 2)
Plan für den neuen Bunker und die Außenanlage (Ebene 1)
Antworten auf weitere Fragen
ALLGEMEINE FRAGENWas ist der eigentliche Grund, warum jetzt der Anbau gemacht werden soll?
Eigentlich sollte die Frage richtig heißen: Warum erst jetzt? Schon seit 30 Jahren bewegt Zedakah die Erweiterung des Pflegeheims, vor allem aufgrund der großen Nachfrage nach Pflegeplätzen. Seit 2015 haben wir uns intensiv mit der zukünftigen Ausrichtung von Zedakah beschäftigt. In diesen Überlegungen ist uns immer deutlicher geworden, dass unser Tröstungsauftrag in Israel nicht zu Ende geht, sondern weitergeht bis zur Wiederkunft Jesu. Durch eine Erweiterung des Pflegeheims können wir unserem Auftrag noch besser nachkommen und dem jüdischen Volk Segen und Trost sein.
Die Generation der Holocaustüberlebenden stirbt in absehbarer Zeit aus. Wer soll von dem Erweiterungsbau profitieren?
Im Jahr 2020 leben noch mehr als 160.000 Holocaustüberlebende der ersten Generation in Israel. Noch im Jahr 2035 werden voraussichtlich über 20.000 am Leben sein (siehe aktuelle Zahlen). Der Tröstungsauftrag nach Jesaja 40,1 bezieht sich jedoch nicht nur auf die Holocaustgeneration, sondern auf ganz Israel – und zwar bis zur Wiederkunft unseres Herrn Jesus Christus. Nach dem Ende der Holocaustgeneration kommt unser Dienst vorrangig den Angehörigen der Holocaustüberlebenden (2. Generation) und anderen hilfsbedürftigen Juden zugute.
Warum wurde entschieden, das Pflegeheim in Maalot zu erweitern und nicht das Erholungsheim in Shavei Zion?
Mit dieser Entscheidung haben wir keine gegenseitige Wertung des Dienstes in Shavei Zion oder Maalot vorgenommen. Auch in Zukunft wollen wir unserem Auftrag in verschiedener Art und Weise an zwei Standorten nachkommen. Bereits beim Bau des Pflegeheims 1983 wurden jedoch die Fundamente für eine Erweiterung gelegt. Es liegt daher nahe, dass wir als nächstes in Maalot unseren Dienst ausbauen.
Außerdem wird es noch einige Zeit länger pflegebedürftige Holocaust-Überlebende geben als Feriengäste der ersten Generation für Shavei Zion, wo wir ja eine gewisse Selbstständigkeit und Mobilität voraussetzen.
Wie reagieren die israelischen Behörden auf Pläne zur Erweiterung des Pflegeheims?
Bei einem unangemeldeten Besuch in unserem Pflegeheim in Maalot bereits im Jahr 2015 sagte z.B. der Leiter der Landeskontrollkommission des Gesundheitsministeriums Dr. Cohen zu unserer damaligen Pflegedienstleiterin Heike Rüger mit Blick auf die Betonplatte für die Erweiterung: »Warum erweitern Sie nicht? Ein Heim das so gut ist, sollte man doch erweitern!«
Das Wohlwollen der Behörden unserer Erweiterung gegenüber durften wir jetzt auch in der Genehmigungsplanung erfahren: Wir haben schnelle positive Genehmigungen und kaum zusätzliche Auflagen bekommen.
Ist eine Vollauslastung des Pflegeheims in Zukunft gesichert? Wie ist die Situation in der Altenpflege in Israel allgemein?
Trotz des Krieges haben wir auf einen freien Heimbewohnerplatz ca. 30 (!) aktuelle Neuanfragen.
Da auch in Israel der Anteil der älteren Bevölkerung wächst, wird der Bedarf an Altenpflege in den nächsten Jahrzehnten auch in Israel steigen (ähnlich wie in Deutschland).
Aufgrund welcher gesetzlicher Vorgaben sind andere Einrichtungen gezwungen, ihre Heime zu schließen?
In den letzten Jahren hat der Staat Israel die Qualität seiner Pflegeeinrichtungen in den Fokus genommen. Durch die strengeren Vorgaben und Mindeststandards an das Gebäude (»Programma 2016«) mussten/müssen einige Einrichtungen schließen, weil sie z.B. nicht die Mindestabmessungen für die Heimbewohnerzimmer, Flur, Aufenthaltsräume nicht erfüllen können.
Wie hoc
h sind die Gesamtkosten des Erweiterungsbaus?
Dankbar erfreut scheuen wir auch auf die Ergebnisse der detaillierten Kostenberechnungen: Trotz der Anpassungen der Bauform und der Größe der Einzelzimmer, und trotz der Anpassung an einen schlechteren Wechselkurs sind die errechneten Gesamtkosten von 16,8 Mio € fast identisch mit der ursprünglichen Schätzung von 2018 in Höhe von 16,7 Mio €. Natürlich würden die israelischen Architekten und Fachplaner jetzt alles gern auf einmal ausführen. Doch nach einer erneuten Überprüfung haben sie zugestimmt, dass die Unterteilung in Bauabschnitte sinnvoll ist.
Zum einfacheren und transparenten Verständnis des Zusammenhangs von Zahlen und Bauabschnitten wurden diese in der unten abgedruckten Grafik übersichtlich zusammengestellt.
Wenn Sie uns finanziell unterstützen wollen, besuchen Sie bitte unsere speziell für den Erweiterungsbau eingerichtete Spendenseite.
Was passiert mit zweckgebundenen Spenden, wenn das Vorhaben nicht zustande kommt?
Sollte unser HERR das Projekt nicht durch die zusätzliche zwei Langzeitpflegekräfte und finanziellen Mittel bestätigen, dann werden wir die Gaben ggf. nach Rücksprache mit den Spendern für notwendige Renovierung der bestehenden Pflegestation und die geforderte Vergrößerung des Bunkers verwenden.
Unterstützt der deutsche oder der israelische Staat das Projekt finanziell?
In der gesamten Geschichte von Zedakah gab es bisher keine laufenden staatlichen Unterstützungen. Immer wieder können wir nur staunen, wie unser HERR uns mit den nötigen finanziellen Mitteln durch Spenden versorgt. Das erbitten wir von unserem HERRN auch für dieses Bauvorhaben und die zukünftige Versorgung. Bislang ist auch für dieses Bauvorhaben keine staatliche Unterstützung angefragt oder zugesagt. Eine solche staatliche Unterstützung müsste dann ggf. im Einzelfall geprüft werden.
Welche »Synergieeffekte« wird es geben?
Bei deiner Verdreifachung der Heimbewohnerplätze (von 24 auf 72) steigen die laufenden Kosten nicht linear. Dies ist beispielsweise dadurch erklärbar, dass die bestehenden Wirtschaftsräume ausreichend sind. So braucht eine Waschküche nicht im gleichen Verhältnis mehr Personal und Waschmaschinen, wie die Anzahl neuer Bewohner und Mitarbeiter. Diese Tatsache nennt man »Synergieeffekt«.
Wie will ZEDAKAH in Zeiten rückläufiger Spendenentwicklungen die laufenden Mehrkosten decken?
Die laufenden Mehrkosten werden größtenteils durch den 3 x so hohen Eigenanteil der von 24 auf 72 gestiegenen Heimbewohner gedeckt. Dabei bleibt jedoch das Grundprinzip bei der Bewerberauswahl erhalten: Der Minderbemittelte wird bevorzugt. Das Ziel ist, den Anteil an den laufenden Kosten, der durch Spendengeldern aus Deutschland gedeckt werden muss, nahezu konstant zu halten.
Was bedeutet es, dass ZEDAKAH als »Glaubensschritt« keine zinslosen Darlehen für den 1. Bauabschnitt aufnehmen möchte?
In der Vergangenheit haben wir zur Finanzierung einiger Projekte bereits gute Erfahrungen mit zinslosen Darlehen gemacht. Auch wenn uns diese Gelder langfristig zur Verfügung gestellt werden, betrachten wir sie jedoch als Verbindlichkeit, die unsererseits noch offen ist. Wir haben uns dazu entschieden diese offene Position für den 1.Bausabschnitt des Erweiterungsbaus nicht anwachsen zu lassen. Der Glaubensschritt dabei ist: Wir vertrauen darauf, dass es Gottes Wille ist, dass wir dieses Projekt angehen und er uns die notwendigen Mittel zur rechten Zeit als Spenden und nicht in Form von Darlehen zur Verfügung stellt.
Grundsätzlich sind wir jedoch unter gewissen Voraussetzungen außerhalb dieses Projektes offen für Angebote von zinslosen Darlehen. Bitte kontaktieren Sie uns ggf. hierzu.
Ist das Vorhaben angesichts der aktuellen Mitarbeitersituation nicht unverantwortlich?
Für uns ist der Erweiterungsbau ein gewaltiger Glaubensschritt, den wir nicht auf dem Rücken unserer Mitarbeiter austragen wollen. Wir beten und werben um die benötigten Mitarbeiter in allen Bereichen.
Eine Bedingung für den Beginn der Arbeiten ist, dass wir mindestens 5 Pflegefachkräfte haben, die eine israelische anerkannte Lizenz haben, bzw. solche, die auf dem Weg sind, eine solche Lizenz zu erwerben. Inzwischen haben wir, Gott sei Dank 4 Schwestern mit einer solchen Lizenz (3,5 Stellen). Damit fehlen aktuell noch zwei Langzeitpflegefachkräfte (1,5 Stellen), die bereit sind, eine solche Lizenz zu erwerben.
Nach wie vor bleibt das Vorhaben für uns und unsere (zukünftigen) Mitarbeiter ein Glaubenswagnis, an dem wir alle lernen und wachsen wollen. Gleichzeitig sind wir uns der großen Verantwortung für unsere Mitarbeiter bewusst. Wir planen den Innenausbau und die Belegung der erweiterten Stationen schrittweise, so wie der HERR uns die Mitarbeiter und Finanzierungsmittel schenkt.
Wo sollen die zukünftigen Mitarbeiter wohnen?
Das komplette Geschoss unterhalb der beiden Stationen soll für Mitarbeiterwohnungen ausgebaut werden.
Warum besteht ZEDAKAH auf freiwillige, deutschsprachige Volontäre und Fachkräfte? Können auch israelische Mitarbeiter beschäftigt werden?
In erster Linie sehen wir den Auftrag als Christen aus Deutschland dem jüdischen Volk ein Zeugnis zu sein. Das können wir am wirkungsvollsten, wenn freiwillige Mitarbeiter aus Deutschland im direkten Kontakt mit Heimbewohnern und ihren Angehörigen stehen. Diese Tatsache macht auch den besonderen Charakter unserer Pflegeeinrichtung aus. Es beeindruckt die Überlebenden sehr, dass Christen aus Deutschland bereit sind, nach Israel zu kommen und ihnen für ein Taschengeld so hingebungsvoll dienen. Sie spüren die Liebe und das Wirken Gottes, das hier sichtbar zum Ausdruck kommt. Die vom Gesundheitsministerium für diese Größe geforderten lizenzierten Fachkräfte wie Arzt, Apotheker, Therapeuten sind Israelis und großteils bereits seit mehreren Jahren in teilzeit für die erforderliche Stundenzahl bei uns angestellt. Israelische vollzeit Mitarbeiter würden außerdem die Kosten erheblich steigern, da sie nicht als Volontäre beschäftigt werden können.
Ist für den Erweiterungsbau ein größeres Grundstück nötig?
Nein, das vorhandene Grundstück ist für den Erweiterungsbau ausreichend.
Warum muss der bestehende Bau (sogenannte Ebene 2) abgerissen werden?
Der neue Bunker erstreckt sich auf ganzer Länge unter dem geplanten Erweiterungsbau. Es ist daher wirtschaftlicher den freistehenden, bereits über 30 Jahre alten und nur zu geringen Teilen ausgebauten Rohbau abzureißen und die Baugrube für den neuen Bunker auszuheben, als die bestehende Betonplatte zu erhalten und den Bunker daneben zu bauen. Außerdem entsprechend die alten Fundamente nicht mehr den aktuellen statischen Normen und Anforderungen (höhere Vorgaben für Erdbebensicherheit). Abgesehen vom Raum für Beschäftigungstherapie befinden sich auf unter der Betonplatte nur Lagerräume, die nicht ausgebaut sind, so dass bei einem Abriss kein hoher Verlust entsteht.
Weshalb ist ein Bunker notwendig? Wie sind die aktuellen Anforderungen zur Größe des Bunkers?
Für alle Gebäude in Israel ist ein Bunker- oder Schutzraum verpflichtend. Dazu kommt, dass Maalot in der sogenannten »Nullzone« im Norden von Israel liegt, nur 9 Kilometer von der Grenze zum Libanon entfernt. Nullzone bedeutet: Null Sekunden Zeit sich zwischen dem Ertönen der Sirene und dem Einschlag der Rakete in Sicherheit zu bringen. Daher haben wir sowohl im 2. Libanonkrieg (2006) mit unseren Heimbewohnern 5 Wochen, als auch besonders im Krieg nach dem 7. Oktober 2023 mehr als 420 Tage im Bunker verbracht. Nach aktuellen Anforderungen muss der Bunker eine Mindestgröße von 6 bis 8 m² pro Heimbewohner (anstatt früher 2 m² pro Heimbewohner) haben. Daher ist dies eines der dringlichsten Anliegen für die Erweiterung! Da der Bunker durch den darüberstehenden Rohbau mit „geschützt“ wird, ist das Ziel den Bunker incl. kompletten Rohbau in einem Bauabschnitt zu erstellen.
Wie sollen die Bunkerräume außerdem genutzt werden?
Wir planen in Friedenszeiten die Räume für die 5 mal pro Woche stattfindende Beschäftigungstherapie und andere Verwendung zu nutzen.
Warum sollen mehr als 24 zusätzliche Plätze gebaut werden? Was haben der Architekt / die Behörden Ausschlaggebendes gesagt, dass jetzt bis zu 48 mehr gebaut werden sollen?
Die Vorgaben des israelischen Gesundheitsministeriums beziehen sich auf 36 Heimbewohner pro Station (Ebene). So werden in Israel alle Heime gebaut. Deshalb war es für den Architekten gleich klar, dass wir aus wirtschaftlichen Gründen und auch aufgrund des hohen Bedarfs gar nicht kleiner planen sollten. Diese Zahlen wurden von den Fachleuten in Deutschland ebenfalls so bestätigt. Da der Bunker unterhalb der Stationen liegt und gleich auch für die entsprechende Zahl von Bewohnern dimensioniert sein soll, lag es auch hier auf der Hand, nicht erst eine kleine Lösung zu bauen und dann wieder zu erweitern. Deshalb waren die Verantwortlichen sich einig: Die Erweiterung auf bis zu 72 Betten sollte auf jeden Fall nicht »verbaut« werden, sondern mit der Möglichkeit des schrittweisen Aus- und Aufbaus angegangen werden. Wie bereits oben erwähnt soll dabei nicht auf einen Schlag, sondern schrittweise, wie uns der HERR Mitarbeiter und Mittel schenkt, ausgebaut werden.
Warum werden jetzt mehr Einzelzimmer geplant? Welche Anpassungen wurden außerdem vorgenommen?
Es gibt die gesetzliche Auflage in Israel, dass bei der geplanten Größe 4 Einzelzimmer vorhanden sein müssen. Im Vergleich dazu dürfen in vielen Bundesländern in Deutschland (Stichtag 01.01.2019) nur noch Pflegeheime mit Einzelzimmer gebaut werden.
Wir betonen die Vorteile eines Doppelzimmers für Heimbewohner und das Pflegepersonal. Gerade bei Holocaustüberlebenden, die oft einsam sind, ist unsere Erfahrung, dass nach einem (manchmal schwierigen) sich aneinander gewöhnen, gerade auch das miteinander Leben einen positiven Effekt hat. Außerdem ist eine Pflegekraft doppelt so viel in einem Doppelzimmer anwesend, wie in einem Einzelzimmer.
Als Ergebnis sollen deshalb in der angepassten Planung die Pflegezimmer grundsätzlich als koppelbare Doppelzimmer gebaut werden, die mit Trennwänden sehr einfach so abzuteilen sind, dass sie mit geringem Aufwand auch als Einzelzimmer verwendet / umgebaut werden können.
Weitere Ergänzungen und Anpassungen gegenüber einem ersten Plan wurden vorgenommen:
Die vorgeschriebenen neuen Parkplätze wurden auf der Südseite mit eingeplant in Verbindung mit einem neuen, barrierefreien Haupteingang von der Südseite her.
Wie kann ich mich über den aktuellen Stand des Baus informieren?
Auf unserer Internetseite (siehe »Erweiterungsbau«) werden wir über den aktuellen Stand informieren. Bei weiteren Fragen wenden Sie sich an Martin Meyer und Frank Clesle, telefonisch unter 07084 9276-0, oder über unser Kontaktformular.
Wie soll der familiäre Charakter des Pflegeheims bei der geplanten Größe erhalten bleiben?
In den Planungen mit dem Architekten, Fachleuten und unseren verantwortlichen Mitarbeitern haben wir auf diesen Punkt besonders Wert gelegt. Deswegen werden die bestehenden Stationen erweitert und nicht separat neu gebaut. Hier wurde außerdem nach Beratung mit deutschen Experten die Planung nochmals angepasst: Um den familiären Rahmen des Hauses möglichst zu erhalten, wird jede Station mit 36 Betten nochmals in 3 Pflegegruppen von je 12 Heimbewohnern unterteilt mit je einem eigenen Essbereich. Erfahrungswerte aus anderen Heimen in Deutschland und Israel sagen, dass der familiäre Charakter erst ab einer Gesamtgröße von mehr als 100 Pflegeplätze verloren geht.
Seid ihr in einer Prüfphase oder ist schon klar, dass ihr den Erweiterungsbau machen wollt?
Aufgunde der aktuellen Genehmigungsplanung wurde dem Planungteam am 7.11.2020 von der Mitgliederversammlung die Freigabe erteilt, alle Unterlagen für die Ausschreibung der benötigten Bauarbeiten vorzubereiten.
Wir sind durch die vielen Ermutigungen unseres Herrn gewiss, so Schritt für Schritt Richtung Erweiterungsbau zu gehen. Wir wissen auch: Es wird ein Glaubensprojekt bleiben, dass nur gelingt, wenn unser HERR alles nötige schenkt.So wollen wir auch weiterhin vom HERRN die Bestätigung erwarten, dass er uns vor Baubeginn die Mitarbeiter für den aktuell laufenden Betrieb (mindestens 2 weitere Pflegefachkräfte (1,5 Stellen) mit israelischer Lizenz) und die Gelder für Bunker sowie Rohbau schenkt (min. 6 Mio Euro).
Wann soll mit dem Bau begonnen werden?
Der Baubeginn soll erst erfolgen, wenn die Mitarbeiter für den aktuell laufenden Betrieb (mindestens 5 Langzeitpflegefachkräfte aus Deutschland mit israelischer Lizenz) und die Gelder für Bunker sowie Rohbau vorhanden sind.
- Geplante Bauabschnitte
Erster Bauabschnitt: Bunker und Rohbau (Ausführung durch israelische Firmen, Bauzeit ca. 1 Jahr). - Zweiter Bauabschnitt: Schnellstmöglicher Innenausbau der ersten Station mit 36 Plätze (vorwiegend in Eigenleistung mit ehrenamtlichen Bauteams aus Deutschland).
- Dritter Bauabschnitt: Ausbau der zweiten Station auf bis zu insgesamt 72 Plätze und der Mitarbeiterebene (vorwiegend in Eigenleistung mit Bauteams).
- Geplante Bauabschnitte

Falls Sie weitere Fragen haben, stehen Ihnen Martin Meyer und Frank Clesle zur Verfügung: telefonisch unter 07084 9276-0, oder über folgendes Kontaktformular (Wenn Sie das Formular verwenden, übertragen Sie personenbezogene Daten an unser System. Beachten Sie dazu bitte unsere Informationen über den Datenschutz.):



